Casa semindipendente in vendita

Sarezzo, Via Cesare Beccaria - Noboli
€ 95.000
Prezzo aggiornato
3 locali 3 locali
85 Mq 85 Mq
1 bagno 1 bagno

Casa semindipendente in vendita

Sarezzo, Via Cesare Beccaria - Noboli

Descrizione annuncio

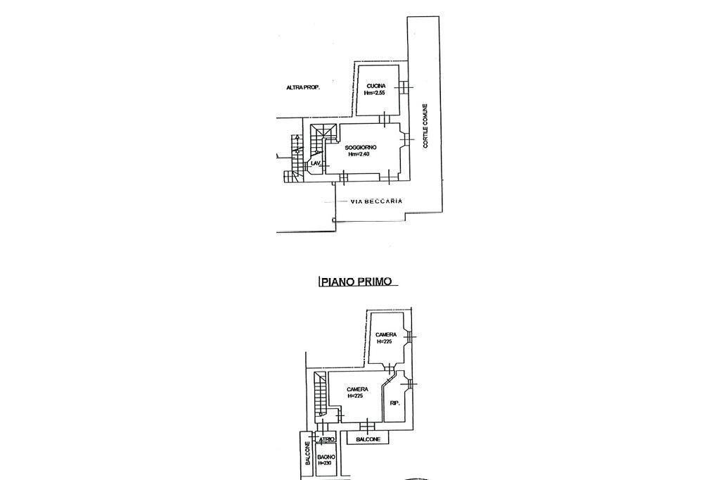
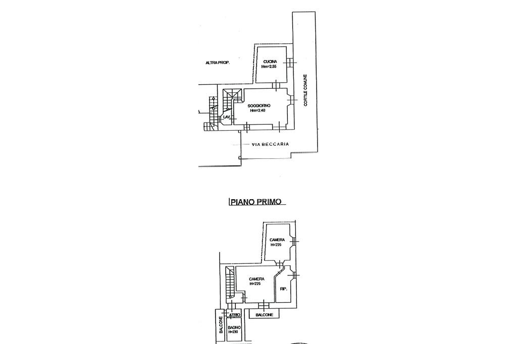
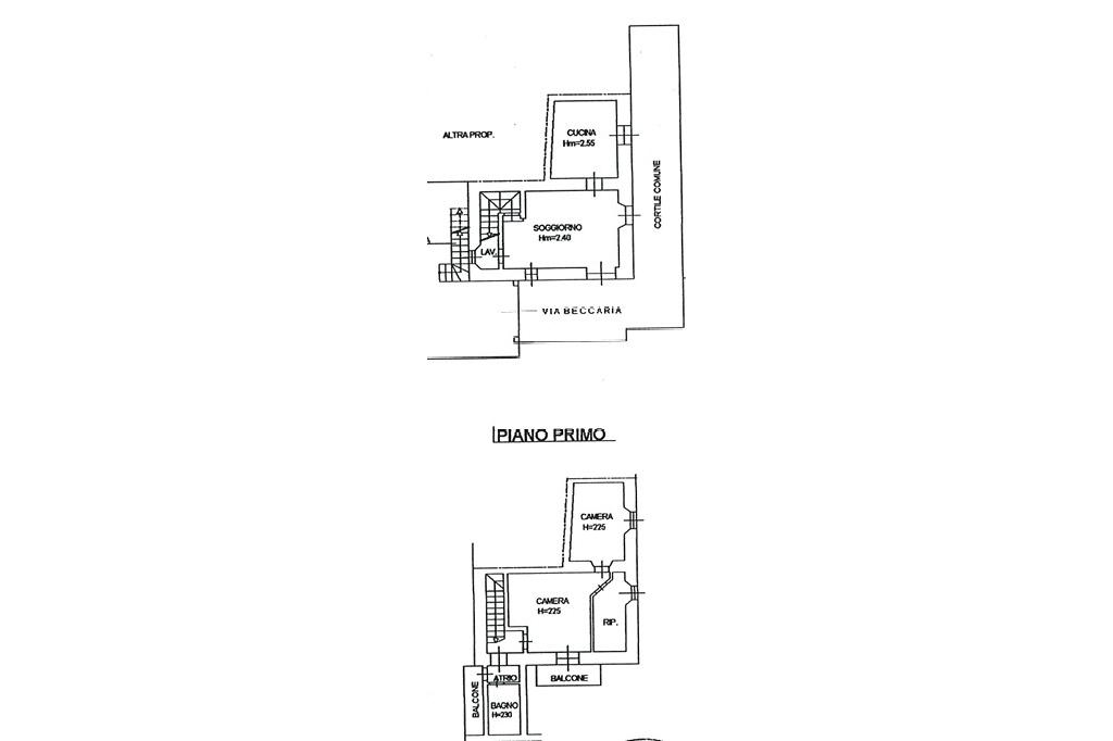
SAREZZO, Noboli - NO SPESE DI AGENZIA - Abitazione completamente indipendente articolata su più livelli fuori terra parzialmente ristrutturata, senza spese condominiali e completamente termoautonoma. L'edificio, facilmente raggiungibile e ubicato in centro abitato, è libero su tre lati ed è stato intonacato e tinteggiato a nuovo. Tetto rifatto. L'immobile è suddiviso in luminoso e grazioso soggiorno con camino in mattoni, cucina abitabile e ripostiglio con lavabo/lavanderia a piano terra con magnifica copertura a volti a botte. Salendo al piano primo è presente la zona notte, comprendente due comode camere da letto, terza cameretta adibita a studiolo o cabina armadio e bagno finestrato con vasca e balcone esterno che affaccia sul cortile. Serramenti con doppio vetro in legno e in alluminio, intonaci e muratura perfettamente tenuta e manutentata nel tempo, impianto idraulico rivisitato con boiler e idrostufa a pellet di ultima generazione comprese nel prezzo. Possibilità carico/scarico, parcheggio libero nelle vicinanze. Siamo a disposizione per sopralluoghi senza impegno.

Mostra tutto

Nelle vicinanze

Trasporto pubblico Trasporto pubblico
Sarezzo (vs Sud)
Sarezzo (vs Sud)
1,0 Km
Sarezzo (vs Nord)
Sarezzo (vs Nord)
1,0 Km
Scuole Scuole
Scuola Primaria Ernesto Pintossi
440 m
Scuola Primaria Alfredo Soggetti
1,3 Km
Scuola Primaria Marcello Candia
1,3 Km
I.P.S.I.A. Giuseppe Zanardelli
2,7 Km
Farmacia Farmacia
Farmacia Comunale Dottoressa Maria Pia Mesiti
380 m
Farmacia Centrale
900 m
Farmacia
1,1 Km
Ospedali Ospedali
Ospedale di Gardone Val Trompia
2,0 Km
Supermercati Supermercati
Esselunga del Crocevia
1,7 Km
7Elle
2,1 Km
Dpiù Discount
3,0 Km
Negozi Negozi
ODStore
1,4 Km
Negozi
2,6 Km
Bar Bar
Club House
1,1 Km
Zohan
1,8 Km
Punto G
2,0 Km
Ristoranti Ristoranti
Ristoranti
470 m
Ristorante Pizzeria Luna Rossa
980 m
Ristorante Mille Lire
1,8 Km
Ristorante Pizzeria La Corte di Marina
2,1 Km
Bar Pizzeria Ristorante Dal Dario
2,2 Km
Mostra tutto

Caratteristiche

Rif.:
61104454
Piano:
Su più livelli di 2
Totale piani:
2
Balconi:
1
Camere da letto:
2
Arredamento:
Assente
Mostra tutto
Prezzo Prezzo
€ 95.000
Rata mutuo Rata mutuo
€ 448 / mese
Spese annue Spese annue
€ 0
Proponi il tuo prezzoProponi il tuo prezzo

Classe Energetica

G
G
G
G
G
G
G
G
G
EP invernale del fabbricato:
EP estiva del fabbricato:
Anno di costruzione:
1960
Riscaldamento:
Autonomo
Tipo impianto:
A stufa
Tipo alimentazione:
Altro

Prezzo ridotto di €1 (5%%)

Ti interessa visionare l'immobile?

Fissa un appuntamento  Fissa un appuntamento

Richiedi informazioni

Clicca su Leggi per aprire l'informativa
* Questi campi sono obbligatori

Calcola il tuo mutuo

Semplice e senza impegno
Anticipo

( % )
Mutuo

( % )

pochi semplici passi

inserisci i tuoi dati
Questionario completato
Grazie per aver richiesto un appuntamento senza impegno con un nostro Consulente del Credito e Assicurativo.

Hai inserito correttamente tutti i dati necessari e a breve riceverai una e-mail con un link da convalidare per inviare i tuoi dati.
Affiliato
Studio Sarezzo Srl
Via Repubblica, 85 25068 Sarezzo (BS)
Via Repubblica, 85 25068 Sarezzo (BS)
Zona: Sarezzo-Villa Carcina
Mostra su mappa
Orari: dal lunedì al venerdì 9.30-12,30 - 14.30-19.00 sabato su appuntamento
Affiliato
Studio Sarezzo Srl
Via Repubblica, 85 25068 Sarezzo (BS)

2026 Tecnocasa Franchising S.p.A. - P. IVA 08365160152 - Via Monte Bianco 60/A 20089 Rozzano (MI). Ogni agenzia ha un proprio titolare ed è autonoma. Privacy policy | Policy utilizzo | Cookie policy